Sabitlenmiş Tweet
م احمد عبد الملك المفتي
2K posts

م احمد عبد الملك المفتي
@AhmdAlmofty
المعماري/ احمد المفتي - تصاميم ومخططات - إستشارات هندسية - خدمات متكاملة في مجال التصاميم للتواصل وتساب https://t.co/WtsEo2tBY0
Katılım Temmuz 2013
145 Takip Edilen1K Takipçiler

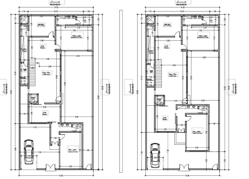
@AL1000A الطابق الارضي .
-موقع الحمامات غير مناسب .
-الانتقال من فراغ المجلس الى الطعام غير مناسبة الافضل يكون في استقلال بالحركة لكل فراغ .
-السيطرة بشكل افضل على محاور الحركة.
الطابق الاول .
- موقع الصالة غير مناسب .
-حمام مفتوح بشكل مباشر على غرفة النوم غير مناسبة .
-الفرش مهم .
العربية

@AL1000A - تهيئة الدخول صغيرة ومحدودة.
_موقع حمام مجلس الرجال والنساء ❌ ومدخل المجلس من المغاسل ❌
- الممرات والسيبات تؤثر على التصميم بشكل سلبي لازم يكون في شراحة والاتساع..
-موقع العاملة في الارتداد وبدون وحمام❌
العربية

@AL1000A _موقع حمام مجلس الرجال❌
- تهيئة الدخول صغيرة ومحدودة.
-المجلس اصبح فية ممر حركة الافضل يكون في استقلال بالحركة .
- الاستغلال بالصالة محدود ونسبة الطول الى العرض وموقع الشاشة غير مناسب ..
-المصعد في حال عملت ارتداد بالطابق الاول راح يكون موقعه غير مناسب ولا يخدمك ..
العربية

@AL1000A _موقع حمام مجلس الرجال❌
_ السيطرة بشكل افضل على محاور الحركة
_ مدخل حمام النساء من الصالة❌
_ انتظام المحاور ..
_اكتاف بارزه عند الدرج ❌
_ اطلالة الصالة ضعيفة ومحدودة.
_ تعارض فتحات الابواب ..
_ المخطط بحاجة الى اهتمام اكثر هناك مجال لعمل مخطط مثالي ..
العربية

@AL1000A _موقع حمام مجلس الرجال❌
_ارتباط الطعام بقسم الضيوف
_ محاور الحركة ❌
_تهوية وإضاءة المطبخ والحمامات والعاملة
_حمام السائق
_مدخل المطبخ من المغاسل❌
_ حمام الماستر مفتوح بشكل مباشر على الغرفة
_ الطابق الاول الافضل يكون في مدخلين بحيث يتم فصل حركة الضيوف عن العائلة
_مساحة المطبخ
العربية

@AL1000A المخطط تقليدي وغير مهني
مساحات مهدرة ومحاور حركة غير مدروسة وعلاقات وظيفية ضعيفة ولا يوجد توازن في توزيع المساحات
اكيد في لديك رغبات خاصة في المخطط لكن المهندس لم يترجمها بشكل صحيح ومدروس والافضل لك تعيد النظر وبشكل كامل لانه حرام عليك ترجم بفلوسك وشقى عمرك بمخطط مثل هذا ..
العربية

@AL1000A مقترح رقم 1
- انتظام المحاور ..
- -مساحة الطعام كبير نوعا ما .
- ابواب الطعام الافضل تكون في جهة واحده .
-مساحة الصالة محدودة نوعا ما ..
-فكرة رقم 2
-موقع الدرج غير مناسب .
- راح تكون في مساحات مهدرة وراح تكلف عليك وتغرمك .
-محاور الحركة في الصالة واستغلالها راح يكون محدود ..
العربية



@AL1000A - السيطرة بشكل افضل على محاور الحركة.
-موقع الحمامات غير مناسب
- الطعام على منور غير مناسب الافضل تكون له اطلالة مناسبة
-تهوية وإضاءة غرفة العاملة
-انتظام المحاور
- الفرش
-الدرج تحديد من اين الطلوع
-الدرج والمصعد ومراعاة تصميم الطابق الاول
- المخطط بحاجة الى اهتمام بشكل افضل
العربية


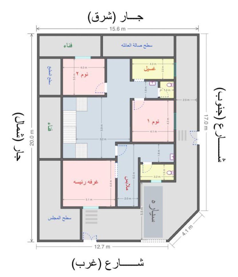
@AL1000A - السيطرة بشكل افضل على محاور الحركة
- موقع المدخل الثانوي❌
_حمام مجلس النساء داخل المجلس❌
_ الاستغلال في صالة المعيشة محدود وراح يكون في مساحات مهدرة.
_ رسم الدرج ناقص وشكلها وموقع المصعد❌
المطبخ على منور ❌.
_عرض غرفة العاملة صغير ومحدود .
العربية

@AL1000A - توجد مساحات مهدرة وراح تكلف عليك وتغرمك
- السيطرة بشكل افضل على محاور الحركة.
- تخديم المقلط !؟
_ اكتاف المجلس الرجال مهمة جدا
_ انتظام المحاور والجدران
_ ابعاد الارض طول * عرض
_ الدرج تعيق المدخل
_ اثاث الطابق الاول
_ هناك مجال لعمل مخطط افضل من هذا بكثير ..
العربية

@AL1000A -الرسم غير مكتمل
-توجد مساحات مهدرة وراح تكلف عليك وتغرمك
-التوازن في توزيع المساحات الداخلية والخارجية.
- موقع حمام الضيوف غير مناسب .
- موقع المصعد غير مناسب .
- موقع طاولة الطعام غير مناسب ..
-المخطط بحاجة الى اعادة النظر بشكل افضل هناك مجال لعمل مخطط مثالي. .
العربية

@EngRiyadh44 - توجد مساحات مهدرة نوعا ما ..
- حمام مكشوف على غرفة النوم .
- البناء على الارتداد في اربع جهات مخالف للأنظمة.
- موقع باب المستودع في المطبخ غير مناسب .
- السيطره بشكل افضل على محاور الحركة.
-حمام الضيوف مكشوف على الطعام غير مناسب.
العربية

@mmmeser @AL1000A - هناك مساحات مهدرة وغير مستغلة وراح تكلفك وتغرمك..
-يفضل عمل صالة معيشة وتكون لها اطلالة بدل الاسهاب والهدر للمساحات ..
- مساحة حمام غرف النوم صغير جدا ..
- الفرش مهم جدا .
-يفضل ان لا تقل مساحة غرف النوم عن 4*4 متر .
-انتظام المحاور .
-المخطط بحاجة الى اعادة نظر بشكل افضل .
العربية

@AL1000A _الصالة كلها محاور حركة ومن الصعب استغلال المساحات فيها ..
_موقع المطبخ والمستودع غير مناسبة .
_ موقع الدرج غير مناسب .
_ الباب الثانوي مفتوح على المطبخ غير مرغوب ..
_ الفرش مهم جدا ورسم ابعاد الارض وتحديد الاتجاهات..
_ المخطط غير مناسب هناك مجال لعمل مخطط افضل بكثير
العربية

@AL1000A موقع الحمامات كلها غير مناسبة ..
الاهتمام بالاطلالات بشكل افضل..
مساحة الدرج محدودة وصغيرة نوعا ما ..
يفضل الطعام مايكون مكشوف على الصالة
المخطط بحاجة الى اعادة النظر بشكل افضل
مساحة الارض تعطيك مجال لعمل مخطط مثالي ...
العربية

@AL1000A اطلالة الطعام على منور غير مناسبة ..
-شكل الدرج غير خدمي
- هناك مساحات مهدرة
-غرفة العاملة بحاجة الى تهوية وإضاءة وموقع الباب ..
- موقع حمام المعيشة غير مناسب ..
العربية





























