
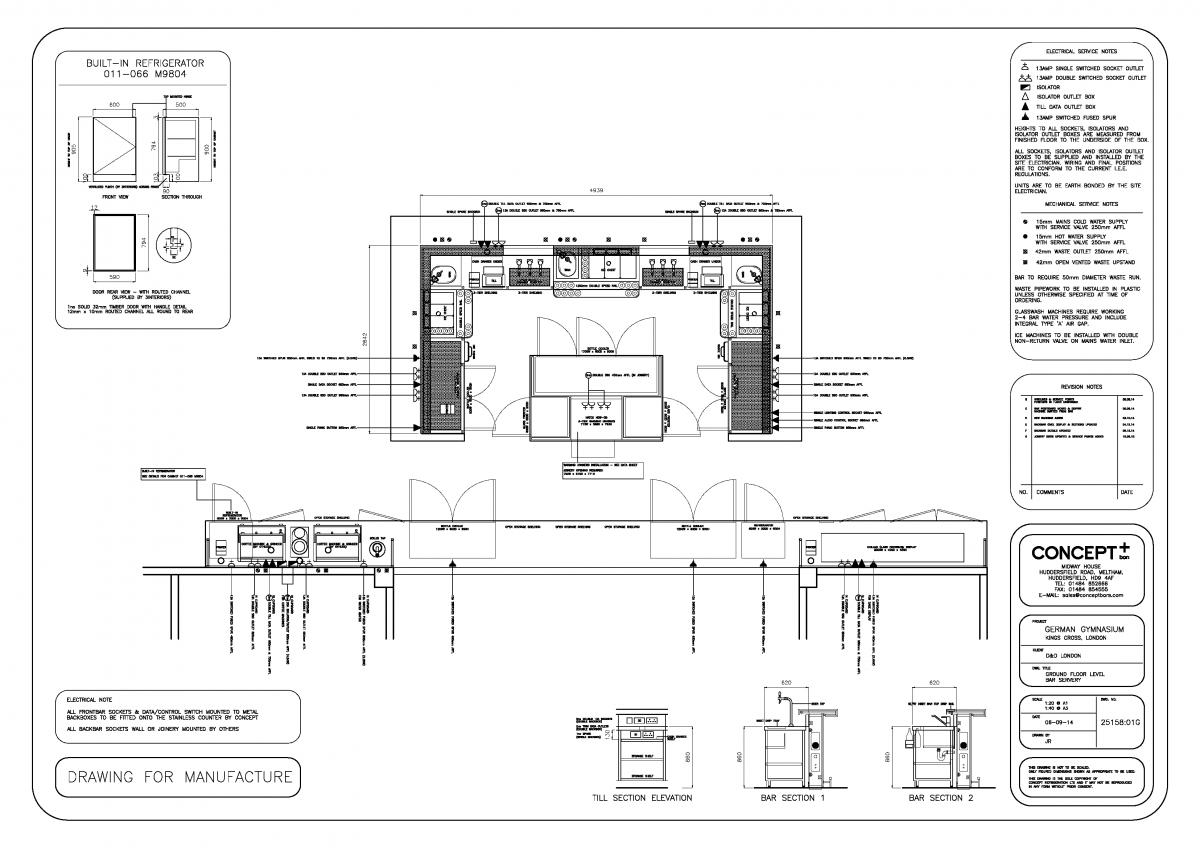
We carried out this complete bar build!
You can see more on the project here: bit.ly/2xZRb3R
#BarBuild #Bar

English
CONCEPT bars
174 posts

@Concept_Bars
Concept are acknowledged as leading bar specialists and innovators in the UK - either as bar consultants, designers or manufacturers.





































