
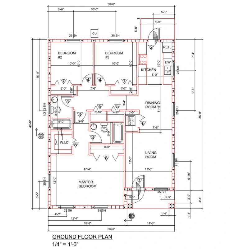
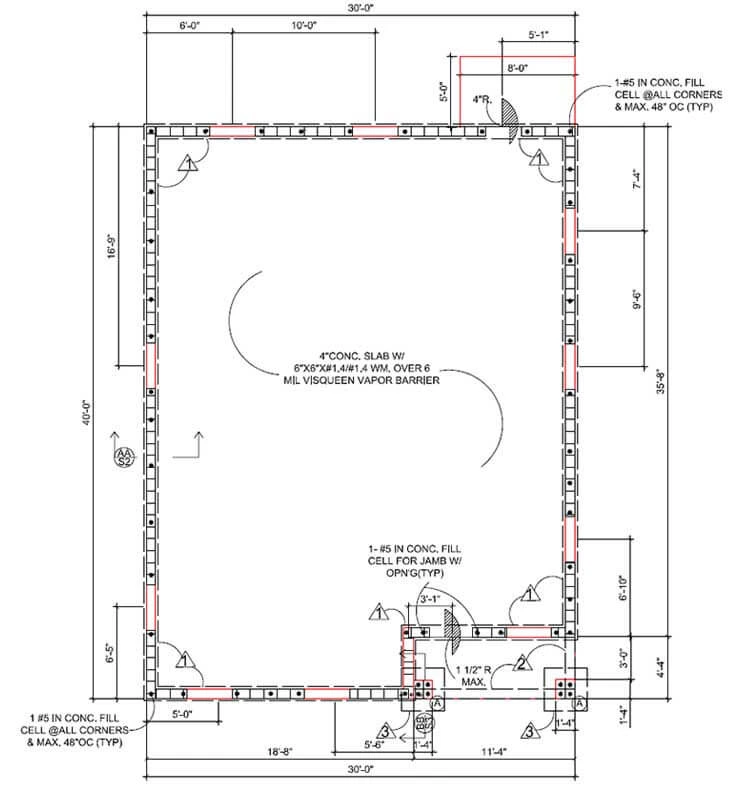
Turn 2D CAD drawings & PDFs into data-rich 3D BIM models for better coordination and design clarity.
Explore our Architectural BIM Services 👇
hitechbimservices.com/architectural-…
#ArchitecturalBIMServices #ArchitecturalBIMmodels #LOD #Revit #AEC

English
















