
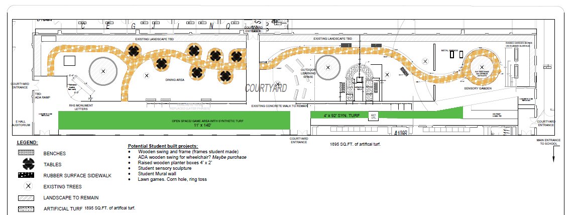
Thank you @A4LE_ntx for your continued support on our Senior Courtyard Renovation. Your generous award allows these student to see their visions become reality. Next year the majority of this project will be complete! #CTEmonth @RichardsonHS1 @RISD_CTE



English


















































