Rising Real Estate

1.2K posts

Rising Real Estate banner
Rising Real Estate

Rising Real Estate

@RisingRealEst

Philadelphia real estate news and urbanist content. Posts by @KyleMcShane

Philadelphia, PA Katılım Mart 2019
89 Takip Edilen2.8K Takipçiler
Rising Real Estate
Rising Real Estate@RisingRealEst·
@JonahA59 send me a DM and I can get you set up. I think you'll like it - a bunch of maps (and more) involved :)
English
1
0
0
9
Rising Real Estate
Rising Real Estate@RisingRealEst·
120 residential units + commercial space is coming to the site of the former theater at Front and Girard in Fishtown. Demolition permits have already been issued and a trip to the Civic Design Review is scheduled in the near future for the by-right, 7-story project (cont'd)
Rising Real Estate tweet mediaRising Real Estate tweet media
English
2
3
27
7.9K
Rising Real Estate
Rising Real Estate@RisingRealEst·
What kind of commercial tenants would you like to see open up in these spaces? Do you think these 24 car parking spaces are needed right next to the Girard El station?
English
1
0
4
475
Rising Real Estate
Rising Real Estate@RisingRealEst·
There will be a 2,725 sf commercial space on Front St and an 1,880 sf commercial space along Girard. The project also includes 24 ground level automobile parking spaces with a curb cut entrance on Front St and 42 bicycle stalls. We should have renderings available soon (cont'd)
Rising Real Estate tweet mediaRising Real Estate tweet media
English
1
0
5
3.9K
Rising Real Estate
Rising Real Estate@RisingRealEst·
There’s a significant amount of commercial space available here. What kind of businesses would you like to see open up on this corner? How do you feel about this design compared to the last iteration?
Rising Real Estate tweet mediaRising Real Estate tweet media
English
0
0
1
261
Rising Real Estate
Rising Real Estate@RisingRealEst·
The site traded hands earlier this year and it looks like the new owners have updated the design (old rendering posted here). The project replaces a marble and granite yard, which has now been closed for years (cont'd)
Rising Real Estate tweet mediaRising Real Estate tweet media
English
1
0
2
381
Rising Real Estate
Rising Real Estate@RisingRealEst·
Work is finally underway on a 6-story, 285-unit + commercial project in South Kensington at American and Berks Streets that includes underground parking. We originally told you about this project back in 2020 (cont'd)
Rising Real Estate tweet mediaRising Real Estate tweet media
English
1
0
22
1.1K
Rising Real Estate
Rising Real Estate@RisingRealEst·
The project will need Historical Commission approval as the property sits within the Spring Garden Historic District. What do you think about the design of this building? Should it be approved? Is it better than a Rite Aid with a parking lot?
Rising Real Estate tweet mediaRising Real Estate tweet media
English
1
0
1
276
Rising Real Estate
Rising Real Estate@RisingRealEst·
Well, now we know as property stakeholders are appearing before the Architectural Committee of the Philadelphia Historical Commission. Stakeholders are proposing a 3-story, 28-unit building with ground floor commercial space(s) and a roof deck (cont'd)
Rising Real Estate tweet mediaRising Real Estate tweet media
English
1
0
1
317
Rising Real Estate
Rising Real Estate@RisingRealEst·
You probably noticed that the Rite Aid at 20th and Fairmount Ave closed earlier this year and you may have been wondering what would become of the building and surface parking lot (cont'd)
Rising Real Estate tweet mediaRising Real Estate tweet media
English
2
0
10
1K
Rising Real Estate
Rising Real Estate@RisingRealEst·
We think the design looks fantastic and are really looking forward to this prime time located lot to be developed. What do you think about the plans? What kind of businesses would you like to see open in the commercial spaces?
Rising Real Estate tweet mediaRising Real Estate tweet mediaRising Real Estate tweet media
English
0
0
14
506
Rising Real Estate
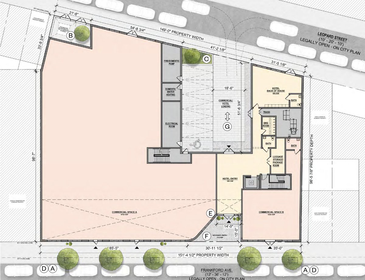
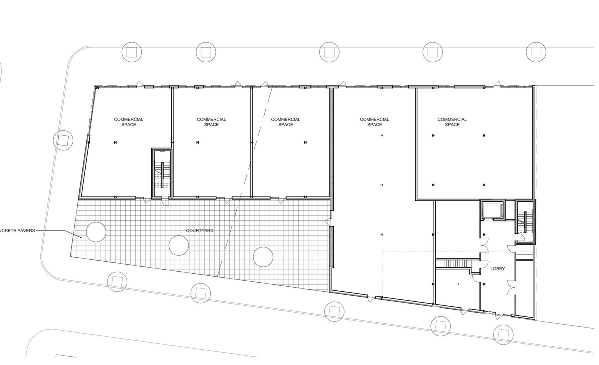
Rising Real Estate@RisingRealEst·
The developer is seeking a variance that would allow the resi units to be used as a hotel, to include 5 parking spaces (0 allowed by-right), to include 7 bicycle stalls instead of the required 20, and for a slightly larger than allowed first floor coverage and total building SF
Rising Real Estate tweet mediaRising Real Estate tweet mediaRising Real Estate tweet media
English
2
1
12
857
Rising Real Estate
Rising Real Estate@RisingRealEst·
New plans have been released for the big vacant lot in Fishtown next to Frankford Hall at 1224 Frankford Ave. The plan is for a 5-story, 59-unit building with 2 commercial spaces 🧵
Rising Real Estate tweet media
English
1
2
31
1.5K
Rising Real Estate
Rising Real Estate@RisingRealEst·
Developers are seeking a variance to allow some short term stay units in the building What do you think about the design of this project? Are you excited to see this massive surface parking lot developed?
Rising Real Estate tweet mediaRising Real Estate tweet mediaRising Real Estate tweet media
English
1
0
6
526
Rising Real Estate
Rising Real Estate@RisingRealEst·
The project has been downsized from 50 to 42 units. The first floor of the building will be composed almost entirely of commercial space, which could be broken up into 2 commercial units. There will also be a 6 car surface parking lot at the back of the site along Blair St....
Rising Real Estate tweet mediaRising Real Estate tweet media
English
1
0
4
648
Rising Real Estate
Rising Real Estate@RisingRealEst·
Renderings are now available for the mixed-use project planned on Frankford Avenue in Fishtown across the street from Palmer Park and next to Kalaya on the site of a large surface parking lot (cont'd)
Rising Real Estate tweet mediaRising Real Estate tweet media
English
7
2
53
5.3K
Rising Real Estate
Rising Real Estate@RisingRealEst·
Two big side notes from the 76ers arena meeting tonight: a 340-unit mixed use building at 920 Market St. and a 400-600 bed hotel at the site of Goldenberg's Disney Hole
Rising Real Estate tweet media
English
1
5
33
2.5K
Rising Real Estate
Rising Real Estate@RisingRealEst·
BREAKING: Mayor Parker has announced that her administration has reached an agreement with the 76ers that will allow the team to proceed with building a new arena on East Market Street. What do you think about this development and how do you think it will affect the city?
Rising Real Estate tweet mediaRising Real Estate tweet mediaRising Real Estate tweet mediaRising Real Estate tweet media
English
30
22
274
86.9K
Rising Real Estate
Rising Real Estate@RisingRealEst·
The rail cars will all be connected / open within, so you’ll be able to walk from one car to another without going onto the platform. What do you think about their design and the new seating configurations?
Rising Real Estate tweet mediaRising Real Estate tweet media
English
2
1
29
1.1K
Rising Real Estate
Rising Real Estate@RisingRealEst·
Big news for the Market Frankford Line. SEPTA has placed a $724 million order for 200 new rail cars for the MFL with the option to purchase 40 more cars. The deliveries will begin in 2029 and run through 2031 >>>
Rising Real Estate tweet mediaRising Real Estate tweet media
English
11
18
181
13.1K