Rivian Adventure Network Tracker
1.1K posts

Rivian Adventure Network Tracker
@RANtracker
Tracking new Rivian Adventure Network Stations, Service Locations, Rivian Spaces, and more... | Note: we are not officially associated with @Rivian | -0——0-

A new Rivian Adventure Network station is coming to Centennial, Colorado. Permits have been filed for the addition of 12 charging dispensers, including 1 trailer stall, at Centennial Promenade, near the IKEA. The site is located directly off I-25 at the exit for County Line Rd.






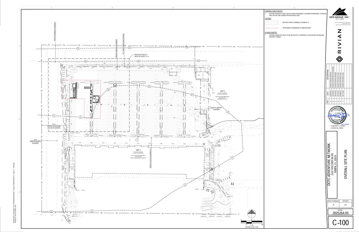
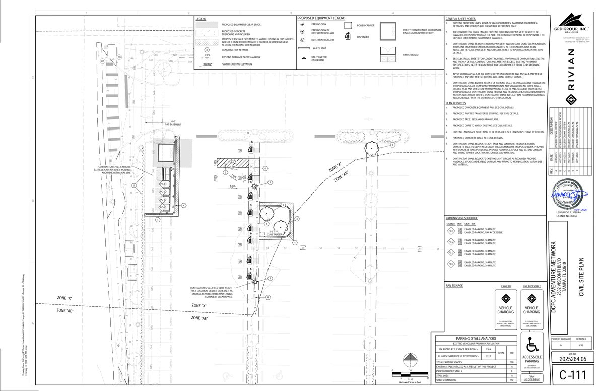
Rivian is building a new Adventure Network station in Tampa, Florida!! Permits have been submitted for a 6 dispenser installation at the Shoppes at Causeway, about a mile off I-75. The site is set to feature one trailer stall, and could eventually have up to 4 more dispensers.



For some reason, a second Rivian Network station is planned in Santa Clarita, California. Permits have been filed for the addition of 12 charging dispensers at Highridge Crossing on Newhall Ranch Rd. The site is located a few miles away from the planned location on McBean Pkwy.





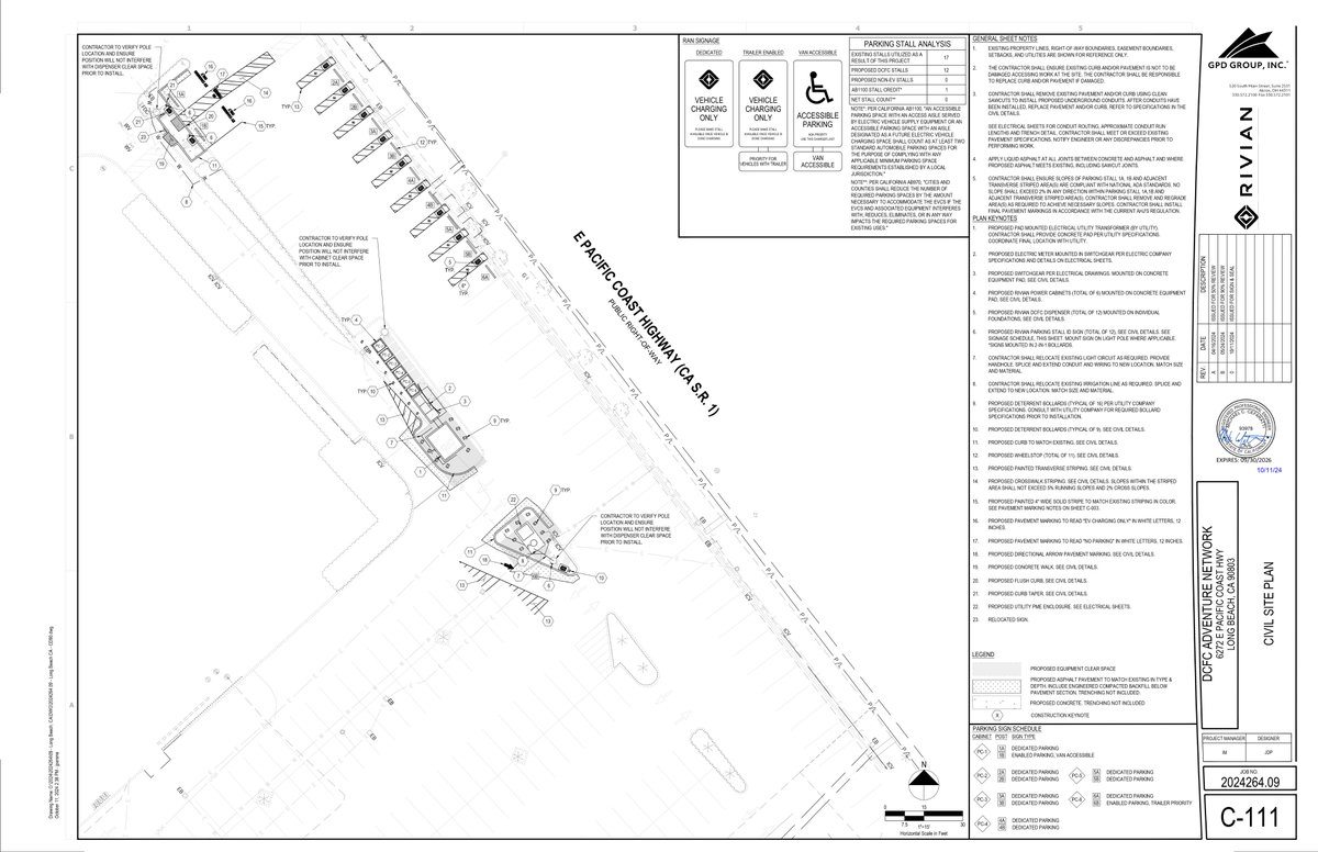
Rivian is planning a new Adventure Network station in Long Beach, California!! Permits are in review for the addition of 12 charging dispensers at Marina Pacifica mall on Pacific Coast Highway. The installation will feature 1 pull-through trailer stall.





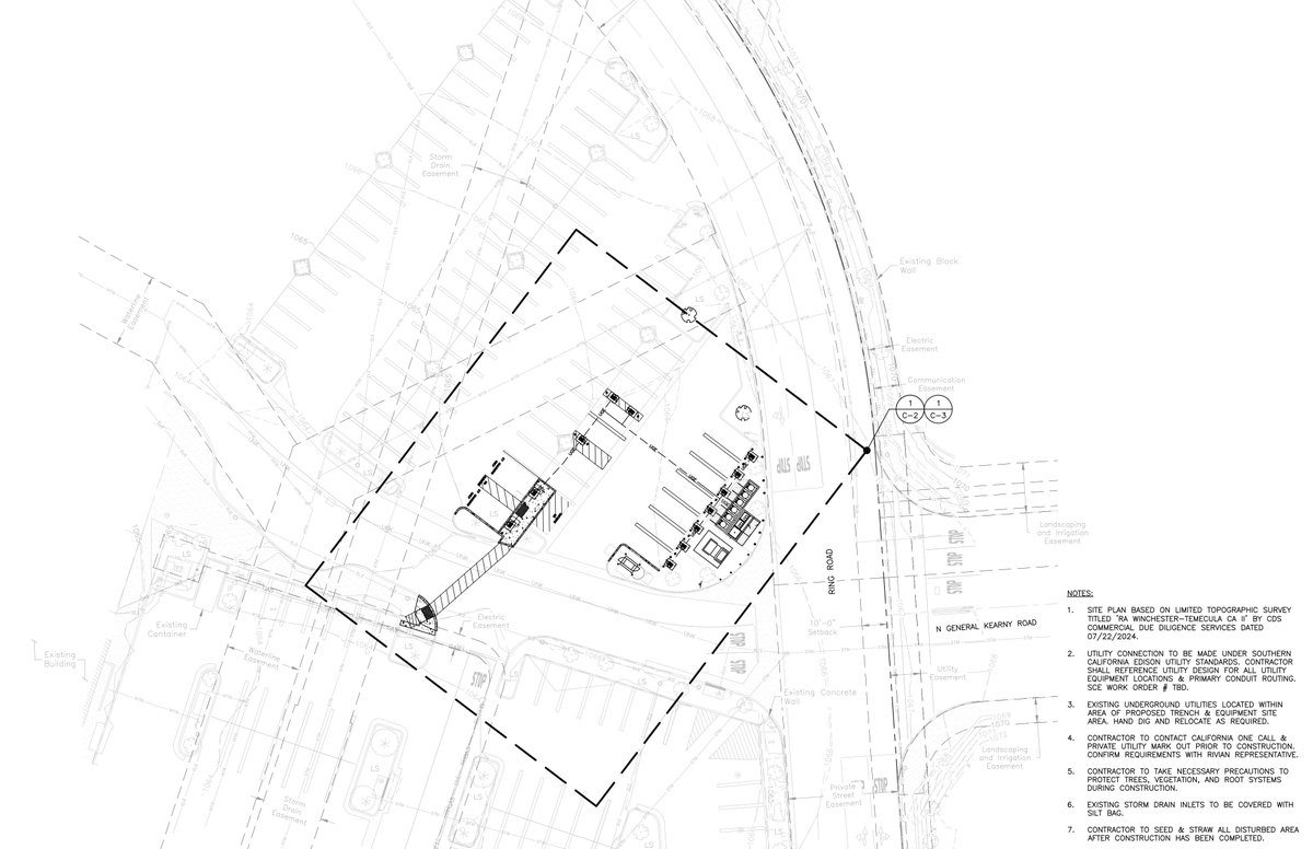
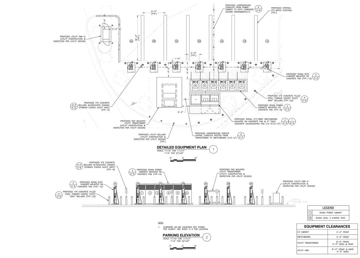
Construction is underway on a new Rivian Adventure Network station in Temecula, California! Permits were issued in September for the installation of 12 charging dispensers at The Promenade Mall. The chargers will be located on the east side of the mall, across from La-Z-Boy.


































